b ü r o

p r o j e k t e

k o n t a k t

 

 

s p o r t h a l l e

 

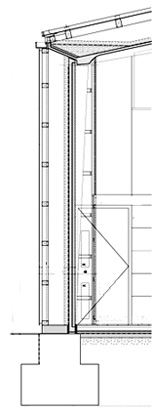
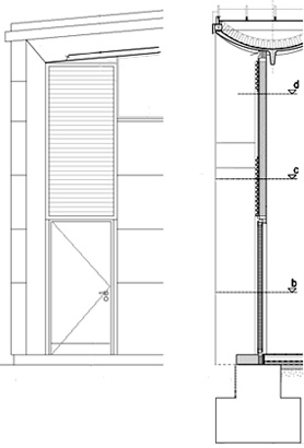
d e t a i l z e i c h n u n g

f a r b k o n z e p t

b i l d e r

 

 

 

 

   
h a l l e n r ü c k w a n d

 
f l u c h t t ü r
 
s o z i a l t r a k t

d i p l . i n g .  a r c h i t e k t i n   c l a u d i a  k ö n i g